top of page
Vanessa Smith
Architecte DPLG
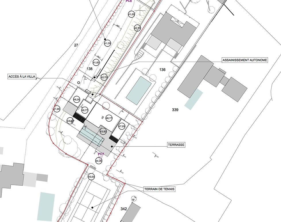
Villa B. - Cassis
Budget - N.C.
Mission Permis de construire pour la construction d'une villa neuve.
Les clients souhaitent construire une villa à la fois facile à vivre pour y passer leur retraite sereinement et suffisamment spacieuse pour y recevoir enfants et petits enfants. L'accent a donc été mis sur les pièces à vivre qui s'organisent en enfilade et s'ouvrent sur la partie haute du terrain, sur une vaste terrasse avec piscine à débordement. Le site en restanques a tout naturellement guidé l'implantation de la maison: garage au niveau bas, parties habitables et piscine au niveau haut.





bottom of page